16 Fotos und Anhänge ansehen
IDEAL Immobilien und Hausverwaltung GmbH
Mommsenstraße 9, 08523 Plauen
Madlen Hofmann-Huster

Vermietung

Teilen

Fassade Logo

Checkliste

01 Flur

02 Flur

03 Flur

04 Wohnen

05 Wohnen

06 Wohnen

07 Schlafen

08 Schlafen

09 Küche

10 Küche

11 Bad

12 Bad

13 Balkon

14 Balkon

IDEAL - frisch renoviert, Aufzug und großer Balkon

Eckdaten

  • Art Etagenwohnung
  • Lage 08525 Plauen
  • Miete zzgl. NK 429,00
  • Warmmiete 679,00
  • Nebenkosten 250,00
  • Wohnfläche ca. 78
  • Zimmer 2.5
  • Baujahr 1997
  • Etagenzahl 7
  • Etage 4
  • Alt-/Neubau Neubau
  • Heizungsart Zentralheizung
  • Einbauküche nein
  • Anzahl Balkone 1
  • Kaution 1000,00 €
  • Verfügbar ab sofort
  • Bodenbelag Vinyl Fliesen
  • Ausstattung des Bades Badewanne
  • Zustand Gepflegt
  • Immobilien-ID 2546

Immobilie

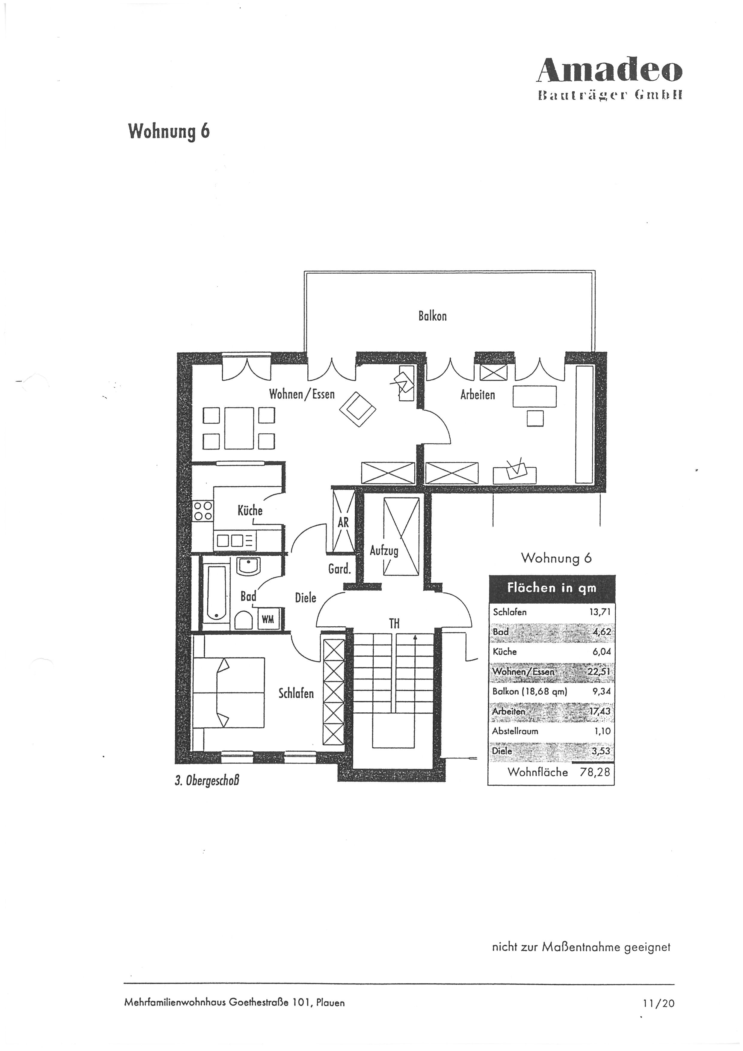
Die zu vermietende 2,5 Raumwohnung liegt im 3.Obergeschoss des gepflegten Mehrfamilienhauses in der Goethestr. 101 in Plauen.

Lage

Das Mehrfamilienhaus liegt im Stadtgebiet Preißelpöhl der Stadt Plauen. Geschäfte mit Waren des
täglichen Bedarfs und öffentliche Verkehrsmittel sind in wenigen Gehminuten zu erreichen. Die
Goethestraße ist verkehrstechnisch gut gelegen, bietet aber ein ruhiges Wohnumfeld. Die Umgebung
bietet in Form von Spazieren oder Radfahren den perfekten Ausgleich nach einem stressigen
Arbeitstag. Nutzen Sie die Vorteile einer gut entwickelten Infrastruktur. Sie finden in der unmittelbaren
Nähe Einkaufsmöglichkeiten, Dienstleistungen aller Art und Schulen.

Ausstattung

Aufteilung der Wohnung: - Wohnen, Esszimmer, Schlafen, Küche, Bad/WC, Flur und Balkon
- alle Räumen wurden mit einem neuen Vinylbelag ausgelegt
- neue Zimmertüren wurden verbaut
- geflieste Küche mit Fliesenspiegel im Bereich der Küchenzeile
- Balkon ist vom geräumigen Wohn- Esszimmer aus zu begehen
- Bad mit Badewanne, Handwaschbecken, WC und WM-Anschluss
- abgeschlossenes Kellerabteil
- Personenaufzug vorhanden

Keller Aufzug Balkon vorhanden Einbauküche Rollladen vorhanden

Sonstiges

Alle aktuellen Mietangebote finden Sie auch auf unserer Homepage unter:
www.idealgmbh.de
Konnten wir mit unserem Angebot Ihr Interesse wecken?
…unser Team steht Ihnen gern zur Verfügung.
Alle Angaben ohne Gewähr. Unsere Angaben basieren auf den Informationen der Eigentümer, Ämter,
Behörden oder Dritter, so dass von uns keine Gewährleistung für die Richtigkeit übernommen
werden kann.

Energieausweisangaben

A+
A
B
C
D
E
F
G
H
  • Enerigeausweistyp Verbrauchsausweis
  • Energiekennwert 75 KWh(m²*a)
  • Energieeffizienzklasse C
  • Energie mit Warmwasser ja
  • Energieausweis erstellt am 19.10.2017
  • Energieausweis gültig bis 20.10.2027
  • Heizungsart Zentralheizung
  • Befeuerung / Energieträger Gas

Grundrisse

Wie können wir Ihnen behilflich sein?

Herzlichen Dank für Ihre Anfrage.

Wir werden diese so schnell wie möglich bearbeiten.

Wie können wir Ihnen behilflich sein?
* Pflichtfeld